Používame cookies

Súbory cookie a ďalšie technológie sledovania používame na zlepšenie vášho zážitku z prehliadania našich webových stránok, na to, aby sme vám zobrazovali prispôsobený obsah a cielené reklamy, na analýzu návštevnosti našich webových stránok a na pochopenie toho, odkiaľ naši návštevníci prichádzajú. Viac info

 

Rodinný dom 4 izbový - novostavba v Chorvátskom Grobe blízko kaštiela AGÁTKA

Interné ID: D001A
Ulica: hlavny dvor
Obec: Chorvátsky Grob
Okres: Senec
Kraj: Bratislavský kraj
Druh: Domy
Typ: Predaj
Typ domu: Rodinný dom
299 990 €

Popis nehnuteľnosti

Realitná kancelária Reality na jednotku Vám s potešením predstavuje výnimočnú nehnuteľnosť - rodinný dom novostavbu v atraktívnej lokalite Chorvátsky Grob, okres Senec. Táto unikátna nehnuteľnosť predstavuje ideálne spojenie moderného bývania a pokojného prostredia.

Základné informácie

Úžitková plocha: 97 m2

Zastavaná plocha: 127 m2

Rozloha pozemku: 489 m2

Počet izieb: 4

Parkovanie: Vlastné parkovacie miesta pre 2 osobné autá

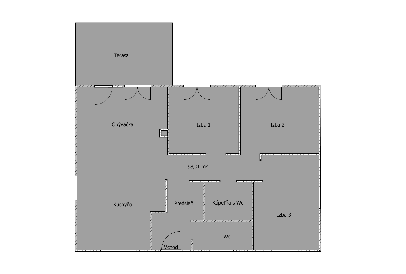
Dispozičné riešenie

Dom ponúka moderný štandard a vynikajúce dispozičné riešenie pre komfortný život:

Vstupná chodba

Obývacia izba spojená s kuchyňou a priamym výstupom na terasu

Rodičovská spálňa

Dve samostatné detské izby

Kúpeľňa so sprchou spojená s toaletou

Samostatná hosťovská toaleta

Technické parametre a stav nehnuteľnosti

Konštrukcia: Obvodové murivo hrúbky 300 mm so zateplením EPS 150 mm

Okná: Izolačné trojsklo v modernom antracitovom prevedení

Strecha: Škridlová v antracitovej farbe

Vykurovanie: Podlahové kúrenie s individuálnou reguláciou v každej miestnosti

Doplnky: Príprava na krb v obývacej miestnosti

Možnosť dokončenia: Je možné dohodnúť si dokončenie domu do štandardu a výber materiálov podľa predstáv (nie je zahrnuté v cene)

Lokalita a občianska vybavenosť

Obec Chorvátsky Grob sa vyznačuje vynikajúcou občianskou vybavenosťou a strategickou polohou len 4 km od Bratislavy. V blízkosti sa nachádzajú:

Potraviny a obchodné centrum

Škola a škôlka

Reštaurácie a služby

Financovanie a služby

Neváhajte si objednať termín obhliadky, sme Vám k dispozícii aj cez víkendy. Kúpu nehnuteľnosti je možné financovať prostredníctvom hypotekárneho úveru, s ktorým Vám pomôže náš finančný špecialista (spolupráca so všetkými bankami). V réžii realitnej kancelárie sú zahrnuté:

Kompletný právny servis

Náklady súvisiace s prevodom nehnuteľnosti a katastrálnym úradom

Notárske poplatky

Vlastnosti

Status:
aktívne
Vlastníctvo:
osobné
Plocha pozemku:
489 m2
Typ zeme:
rovina
Úžitková plocha:
97 m2
Zastavaná plocha:
127 m2
Stav:
novostavba
Počet izieb:
4
Typ výbavy:
holopriestor
Terasa:
áno
Rok kolaudácie:
2023
Celková plocha:
489 m2
Inžinierske siete:
áno
Voda:
áno
Elektrika:
áno
Kanalizácia:
áno
Voda - na pozemku:
áno
Elektrika - na pozemku:
áno
Kanalizácia - na pozemku - kanalizácia:
áno
Vykurovanie - podlahové:
áno
Internet:
áno
Satelit:
áno
Status:
aktívne
Vlastníctvo:
osobné
Plocha pozemku:
489 m2
Typ zeme:
rovina
Úžitková plocha:
97 m2
Zastavaná plocha:
127 m2
Stav:
novostavba
Počet izieb:
4
Typ výbavy:
holopriestor
Terasa:
áno
Rok kolaudácie:
2023
Celková plocha:
489 m2
Inžinierske siete:
áno
Voda:
áno
Elektrika:
áno
Kanalizácia:
áno
Voda - na pozemku:
áno
Elektrika - na pozemku:
áno
Kanalizácia - na pozemku - kanalizácia:
áno
Vykurovanie - podlahové:
áno
Internet:
áno
Satelit:
áno

Informatívna úverová kalkulačka

Pozrieť na mape

Maklér

Zdenko Cích

Zdenko Cích

Certifikovaný realitný maklér 2.stupňa

  • rusr
  • lrm
  • sora

Radi Vám poradíme

Podobné nehnuteľnosti